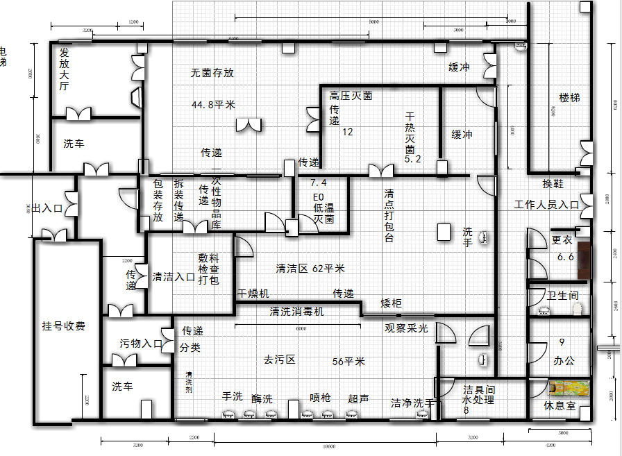
这个图最大的缺陷是小房间太多了,这样空气质量难以控制,对医院感染来说是要尽可能地避免。我把同功能的房间进行重新组合,尽量分区而不是分间。
另外无菌物品存放间,由于面积不充足,可不设缓冲间。在发放区可直接开门,无菌区内的物品与下送车直接交接,即可提高工作效率,也减轻工作人员工作量。双门互锁窗没有必要,反而搞卫生更麻烦。
灭菌器最好双开门,卸载区域留2米的距离即可。
包装的工作区域进行了优化。
外包装的一次性无菌物品可在仓库开箱,不需要另设拆包间。
进入供应室的大门不需要换鞋,自己的鞋在更衣室更衣换鞋。
修改设计图.doc
(428 KB, 下载次数: 174)
15# msabing |